Small cottage house plans inspired by rural vernacular styles enjoy a surge in popularity as we seek solace from the increasingly hectic pace of 21st century life. From the Catskill Mountains in New York to the San Juan Islands in the Pacific Northwest, farm style cottages are popping up as getaway retreats . . . pockets of serenity for time to reflect.
Using the latest in construction technologies and green building techniques, a new breed of designers, builders and manufacturers is creating "new old homes" high in both energy efficiency and visual appeal. Prefab or modular building systems are frequently employed to enhance quality control and reduce labor costs. No longer
the sterile boxes many have come to associate with "prefabricated" homes, the small cottage plans profiled here exude immeasurable warmth and charm!
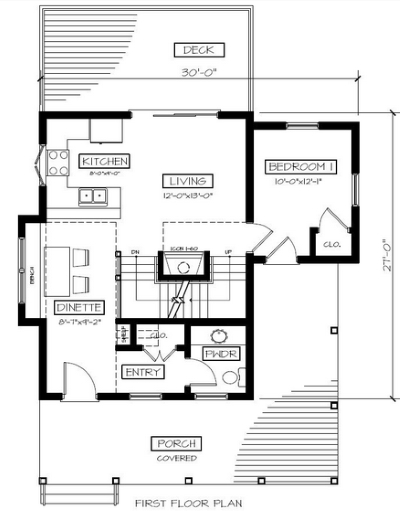
Designed and built by Catskill Farms, an 1,118 square foot farm house (below) is set amidst the quietude of nature only two hours from New York City. The cozy farm cottage boasts a wraparound porch for relaxing with family and friends.

Inside, the open floor plan flows seamlessly through the 1-1/2 story dining area into the living room and kitchen -- transitioning from a soaring open space to a more intimate core. Warmed by a tall stone fireplace, the living room leads to a large outdoor deck through sliding glass doors. A bedroom or optional study and powder room complete Level 1.

The stairs leading to Level 2 are punctuated by a landing, from which an additional flight of stairs rises to a full bath. The remaining flight takes a 90 degree turn (actually 2) while winding its way up to a second story bedroom.

Second Floor Plan
More Photos of Catskill Farms Cottage
One of six small prefab homes from the Cottage Series -- a collaborative effort by Studio 29 Architecture and Method Homes -- "Doe Bay Cottage" (Plan 1) blends traditional farm style design elements with Craftsman detailing. The picturesque gabled composition is punctuated by shed roof dormers and double hung windows with divided lights (upper sashes). Cedar shingles clad the exterior of this 1,484 square foot charmer.

"Doe Bay Cottage" pictured above on Orcas Island in Washington State
(Image Source: Method Homes)
The first floor houses an open kitchen and living area with a cozy nook from which to enjoy -- in this particular example -- the region’s famously inclement weather. More pleasant days can be savored from a covered porch off the living area. Rounding out Level 1 are a bedroom, 3/4 bath, and convenient laundry room near the kitchen.

First Floor (above): "Doe Bay Cottage" Plan 1
The master bedroom suite occupies most of Level 2 and includes a walk-in closet, 3/4 bath, and its own private balcony. Leading to the suite, a corridor atop the stairwell is flanked by built-in beds for overnight guests.

Second Floor (above): "Doe Bay Cottage" Plan 1
Roof mounted photovoltaic panels foster energy independence and an environmentally sustainable future.

Large open deck (lower left center) leads to front entrance
More about "Doe Bay Cottage" Plan 1 (PDF)
New World Home, a New Jersey-based producer of eco-friendly housing, collaborated with Country Living to create a line of historically inspired Green Modular Homes. The "Hudson" (below) is a small cottage house plan with 1,607 square feet of living area on 2 levels. Clad with fiber cement siding and optional metal roof, it features a generous wraparound porch,* shuttered windows, and a charming cupola.

View of "Hudson" facade with detached 2 car garage
(*Porch is modified from that shown in plan)
Image Source: New Jersey Monthly Magazine
Level 1 (below left) boasts an open floor plan with living room, dining room and kitchen. A mud room and powder room are neatly tucked in back.
Upstairs (below right), the master bedroom suite includes a walk-in closet, dual vanity sinks, and separate tub and shower. A second bedroom and 3/4 bath complete the upper level.


Level 1 (above): 923 sq. ft. Level 2 (above): 684 sq. ft.
More about "Hudson" Small Cottage House Plans
Please check back often or subscribe to our RSS feed, as we frequently add small cottage house plans to our site.
YOU MAY ALSO LIKE:

Small House Plan Designs
for Farm & Barn Cottages!

Small House Floor Plans
from Catskill Farms!

Small Country House Plans -
"Farmiliar" Forms!

Tiny House Plans
for Farm Cottages!

Small Farmhouse Plans -
Country Cottage Charm!

Small Barn House Plans
Soaring Spaces!

Small Farm House Plans -
Opportunities for Growth!
Back to Standout Farmhouse Designs Home
Page
Didn't find what you were looking for?
Use this search feature to find it.
Use this search feature
to quickly find the inform-
ation you're looking for.
Subscribe to our Free
Newsletter for More
Exciting Farm & Barn
Home Design Ideas!

RELATED PAGES

Home Decor Interior
Designs -- Modern Take
on Traditional Theme!

Farmhouse Inspired Home Design -- Warm Wood Accents & Soothing Colors!

New House Floor Plans
Old House Charm!

Modern Farm House Floor
Plan -- A Masterwork in
the Midwest!

Country House Floor Plans
Farmhouse Inspired!

Single Floor House Plans
Modern Marvels!

Small House Plan Designs
for Farm & Barn Cottages!

Small House Floor Plans
from Catskill Farms!

Small Country House Plans
"Farmiliar" Forms!

Small Cottage House Plans
Farm Style Features!

Small Farm House Plans
Opportunities for Growth!

Small Farmhouse Designs
Cottage Delights!

Farm House Design
Regional Riches!

The Modern Farmhouse
An Evolving American Icon!

Farmhouse House Plans
for Growing Families!

Small Barn House Plans
Soaring Spaces!

Farm House Floor Plans
for Modern Lifestyles!

Small Farmhouse Plans
Country Cottage Charm!

Farm House Designs
More Popular than Ever!

Barn Home Designs
Reflections of Yesteryear!


Barn Style House Plans
Home Sweet Home!

Tiny Houses for
Farm Style Retreats!

Tiny House Plans
for Farm Cottages!

Farmhouse Design Ideas
Get Inspired!

Bring Your Farmhouse
Plan Ideas to Life!