The small country house plans featured here are infused with farmhouse cottage charm. Gable roofs punctuated by dormers stand tall above generously sized porches. Simple -- yet timeless -- forms merge to create that special place we
call "home."
Sugarberry Cottage
A small country house in Georgia combines classic agrarian charm with cutting edge technology. Designed by Moser Design Group for Southern Living, "Sugarberry Cottage" encompasses 1,679 square feet on two levels. The small house plan boasts a wraparound porch (partially screened) in front and a smaller covered porch in back.

The example featured here is part of Serenbe, a sustainable community south of Atlanta. Building technology supplier, Bosch, partnered with developer Steve Nygren to build one of the German firm's first ultra-efficient homes in the U.S. The cottage incorporates numerous energy conserving features like geothermal heat and solar voltaic panels.

Level 1 features an open kitchen and living area with fireplace, flanked by French doors leading to the side screen porch. The master bedroom suite, located at rear, includes a walk-in closet and bathroom with dual vanity sinks. Opposite the master suite door, a half bath, coat closet and laundry room are discreetly tucked off a hall leading to the back porch.
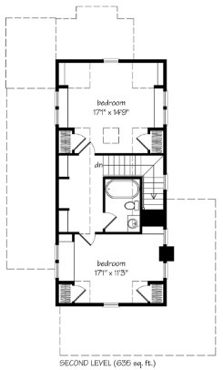
Atop the stairs on Level 2, a large landing area (perfect for a small collection of books) leads to two bedrooms and a full bath.


More about "Sugarberry Cottage" Plan
Designed by architect Allison Ramsey, "Valley Farm Cottage" features tall gabled dormers and a full width front porch. Several variations of this small country house plan are available, ranging in size from about 1,600 to 2,300 square feet.

Inside, the living and dining rooms stretch across the front in an open floor plan leading to the kitchen. Beyond the public space, the master bedroom suite includes two walk-in closets, dual vanity sinks, and a separate tub and shower. A powder room, laundry room and back porch complete Level 1.
The upper level is occupied by two bedrooms -- each with its own full bath. In addition, a large attic space provides room for extra storage.


More about "Valley Farm Cottage" Plan
The "Canton" is a small contemporary house plan with farm style elements. A colonnaded porch extends across the front and around both sides. Paired French doors and windows illuminate the 1,757 square foot interior. A covered breezeway leads to a detached 2 car garage.

Level 1 is roughly divided into two sections. The front section is defined by a large 2 story great room and open kitchen with center island and pantry. The rear section is occupied by a master bedroom with walk-in closet, in addition to a 3/4 bath, laundry closet and coat closet.

Level 1 (above): 1,080 sq. ft.
Upstairs, a loft area above the kitchen overlooks the great room below. A second bedroom and 3/4 bath complete this level.

Level 2 (above): 677 sq. ft.
Click on link below for more farmhouse cottages.

Please check back often or subscribe to our RSS feed, as we frequently add small country house plans to our site.
YOU MAY ALSO LIKE:

New House Floor Plans -
Old House Charm!

Country House Floor Plans -
Farmhouse Inspired!

The Single Floor House Plan -
Modern Marvels!

Small House Plan Designs
for Farm & Barn Cottages!

Small House Floor Plans
from Catskill Farms!

Small Cottage House Plans -
Farm Style Features!

Small Farmhouse Plans -
Country Cottage Charm!

Small Farm House Plans -
Opportunities for Growth!
Back to Standout Farmhouse Designs Home
Page
Didn't find what you were looking for?
Use this search feature to find it.
Use this search feature
to quickly find the inform-
ation you're looking for.
Subscribe to our Free
Newsletter for More
Exciting Farm & Barn
Home Design Ideas!

RELATED PAGES

Home Decor Interior
Designs -- Modern Take
on Traditional Theme!

Farmhouse Inspired Home Design -- Warm Wood Accents & Soothing Colors!

New House Floor Plans
Old House Charm!

Modern Farm House Floor
Plan -- A Masterwork in
the Midwest!

Country House Floor Plans
Farmhouse Inspired!

Single Floor House Plans
Modern Marvels!

Small House Plan Designs
for Farm & Barn Cottages!

Small House Floor Plans
from Catskill Farms!

Small Country House Plans
"Farmiliar" Forms!

Small Cottage House Plans
Farm Style Features!

Small Farm House Plans
Opportunities for Growth!

Small Farmhouse Designs
Cottage Delights!

Farm House Design
Regional Riches!

The Modern Farmhouse
An Evolving American Icon!

Farmhouse House Plans
for Growing Families!

Small Barn House Plans
Soaring Spaces!

Farm House Floor Plans
for Modern Lifestyles!

Small Farmhouse Plans
Country Cottage Charm!

Farm House Designs
More Popular than Ever!

Barn Home Designs
Reflections of Yesteryear!


Barn Style House Plans
Home Sweet Home!

Tiny Houses for
Farm Style Retreats!

Tiny House Plans
for Farm Cottages!

Farmhouse Design Ideas
Get Inspired!

Bring Your Farmhouse
Plan Ideas to Life!